1 Bedroom Modular Solutions


Cozy Comfort, Compact Living
1 Bedroom Modular Solutions
Experience the perfect blend of functionality and comfort with our 1 bedroom modular homes. Ideal for singles, couples, or individuals seeking a minimalist lifestyle, these compact homes offer all the essentials without sacrificing quality or style.
From sleek modern designs and rustic charm, our 1 bedroom modular homes provide a cozy retreat tailored to your tastes.
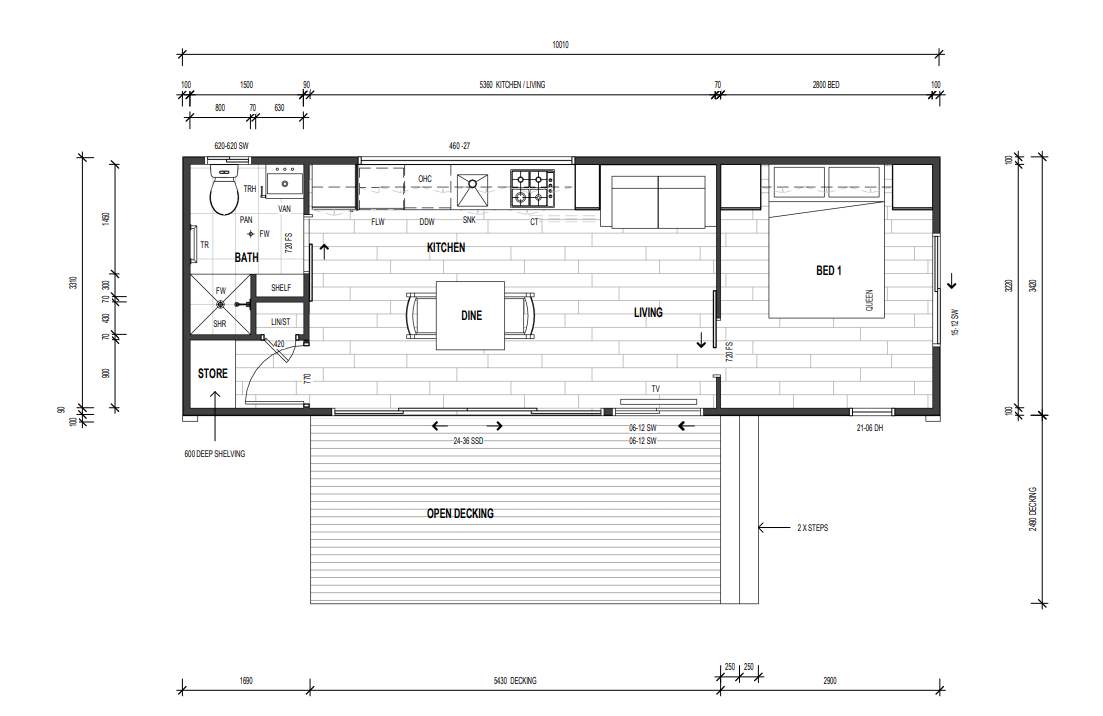
1 Bedroom Modular Sizes: 1000 x 3400
Bedroom: 2800 x 3220
Kitchen/Living Area: 5360 x 3220
Bathroom: 1500 x 2250
Decking: 5430 x 2500
The Space



Features
1 Bedroom: Spacious enough for a queen-sized bed, with ample closet space.
Bathroom: Modern fixtures, including a shower, toilet, and vanity.
Kitchen: Fully equipped with appliances (e.g., refrigerator, stove, microwave) and ample storage space.
Living Area: Open-concept layout, ideal for entertaining or relaxing.
Energy Efficiency: Insulated walls and energy-efficient windows to reduce heating and cooling costs.
Customisation Options: Various interior and exterior finishes available to suit personal preferences.
Floor Plans


The Space











