2 Bedroom Modular Solutions


Versatile Spaces, Endless Possibilities
2 Bedroom Modular Homes
Discover the flexibility of living spaces with our 2 bedroom modular homes. Whether you're starting a family, accommodating guests, using Air BnB or creating a home office, these homes offer versatile layouts to suit your lifestyle.
With customisable floor plans and premium finishes, our 2 bedroom modular homes provide the perfect canvas for your personalisation.
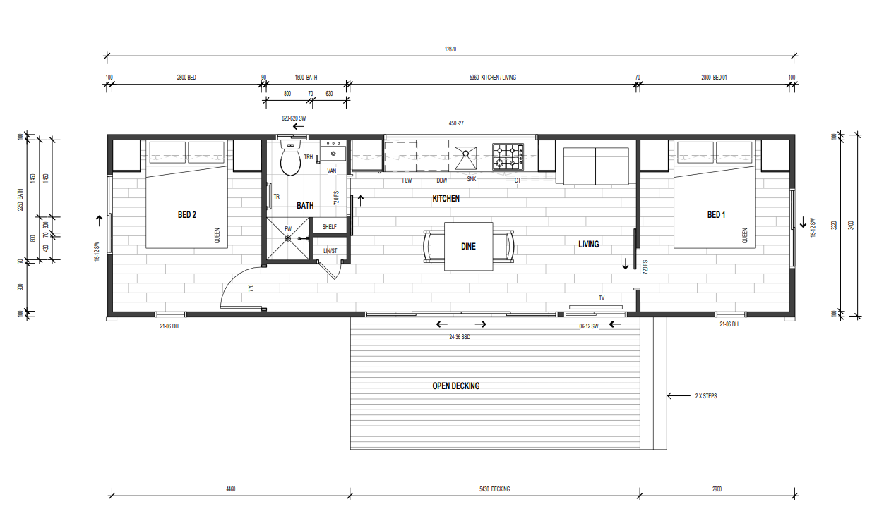
2 Bedroom Modular Sizes: 12900 x 3400
Bedroom 1 & 2: 2800 x 3220
Kitchen/Living Area: 5360 x 3220
Bathroom: 1500 x 2250
Decking: 5430 x 2500
The Space



Features
2 Bedroom: Spacious enough for a queen-sized bed, with ample closet space.
Bathroom: Modern fixtures, including a shower, toilet, and vanity.
Kitchen: Fully equipped with appliances (e.g., refrigerator, stove, microwave) and ample storage space.
Living Area: Open-concept layout, ideal for entertaining or relaxing.
Energy Efficiency: Insulated walls and energy-efficient windows to reduce heating and cooling costs.
Customisation Options: Various interior and exterior finishes available to suit personal preferences.
Floor plans


The Space











